
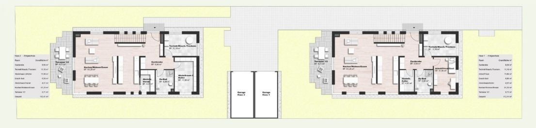
Dieses moderne freistehende Einfamilienhaus im modernen Stil entsteht schlüsselfertig und in bester althergebrachter Ziegelbauweise. Mit 187 qm Wohnfläche und 210,5 qm Gesamtfläche hat Ihre ganze Familie ausreichend Platz. Das Einfamilienhaus besticht durch seine familiengerechten Grundrisse, den wunderschönen Garten und die absolut ruhige, schöne und grüne Lage. Das Einfamilienhaus hat zwei Etagen und bietet mit vier Schlafzimmern, einem Elternbad, einem Kinder-Duschbad, dem Gäste-Duschbad genügend Platz und Freiraum für alle. Die Grundrisse können noch nach Ihren Wünschen geändert werden. Sprechen Sie mit unseren Architekten.
EINE AUSSTATTUNG WIE SIE ES SICH WÜNSCHEN:
* konventionelle Ziegel-Massivbauweise mit 36,5 cm Mauerwerk
* repräsentatives Eichenparkett in allen Wohn- und Schlafräumen
* Bäder mit Tageslicht in Designerausstattung
* elegante Armaturen und exklusive Badobjekte
* hochwertiges großformatiges Feinsteinzeug und Keramikfliesen in der Küche, den Bädern und dem WC
* bodengleiche Dusche
* Fußbodenheizung im gesamten Haus mit Einzelraumsteuerung
* 3-fach verglaste Kunststoff-Fenster (Wärmeschutzverglasung)
* Rollläden im ganzen Haus
* regelmäßige Bauüberwachung durch die DEKRA
Die Großstadt scheint von Lochhausen aus weit weg zu sein: Der Stadtteil ist eher dörflich geprägt. Wahrscheinlich zieht es deshalb viele Menschen in das beliebte Wohnviertel, denn man ist hier relativ zentrumsnah und kann dennoch das Landleben genießen. Zudem befinden sich rund um Lochhausen viele schöne Naherholungsgebiete. Der Langwieder See und der Lußsee im benachbarten Langwied sind zwei der schönsten Badeseen auf Münchner Stadtgebiet, die zudem für ihr sehr sauberes Wasser bekannt. Die nahe gelegene Aubinger Lohe eignet sich für ausgedehnte Spaziergänge - durch die Aufforstung übrigens auch im Sommer. Hier genießen Sie ein niveauvolles und familienfreundliches Umfeld. Hier ist die Welt noch in Ordnung.
Dieses freistehende Einfamilienhaus selbst liegt in einer absolut ruhigen und grünen Wohnlage in bester Nachbarschaft.
Mit der S -Bahn (Lochhausen S3) fahren in 18 Minuten zum Münchner Hauptbahnhof und zum Flughafen sind es ca. 50 Autominuten. Alle Geschäfte des täglichen Gebrauchs, Restaurants, Banken und Ärzte sind in naher Umgebung gelegen.
Lochhausen ist ein kleines Paradies für Familien mit Kindern. Kindergärten und sämtliche weiterführenden Schulen sind zu Fuß oder mit dem Rad schnell zu erreichen.
















